联系我们 | 更多分站 您好,欢迎来到石狮消防设计报审备案!
全国咨询热线13600906870
联系我们Contact us
全国咨询热线13600906870

石狮消防设计报审备案

公司地址:福建省石狮市商务中心,石狮装修消防备案手续代办公司,石狮消防公司,石狮消防设计报审备案,石狮装修消防图纸设计公司,石狮消防设计公司,石狮消防备案,石狮消防改造

联系电话:13600906870

公司邮箱:285035045@qq.com

二次装修施工图审图

石狮消防备案需要设计那些图纸?

消防备案需要设计那些图纸?

在线咨询全国热线
13600906870

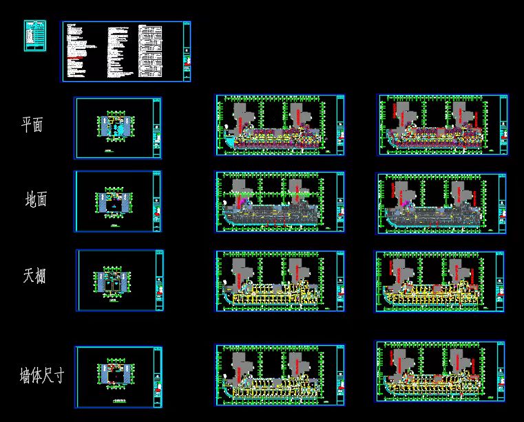
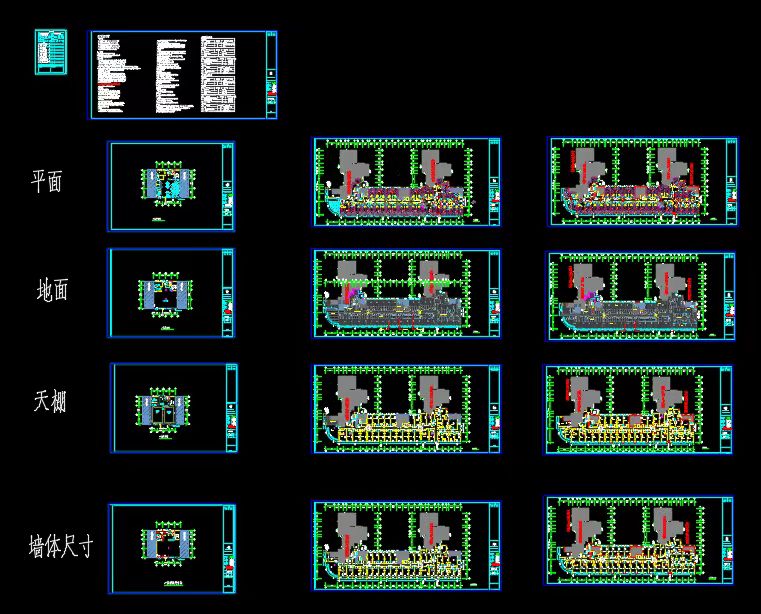
石狮消防备案需要设计那些图纸?装修工程消防施工图纸清单。


  1.施工图消防报建(建筑/装修图)


  (1)消防设计说明专篇;

  (2)设计说明、图例(含设计依据、工程概述、装修材料及其燃烧性能汇总表等);

  (3)消防总平面图(含室外消防车道、扑救场地、消防控制室等);

  (4)报审范围内的装修各层平面图(含防火分区、疏散宽度计算依据、疏散距离、消防电梯等);

  (5)报审范围内的装修地面图;

  (6)报审范围内的装修天花图(标注材料、高度等);

  (7)报审范围内的装修剖面图、立面图(标注材质及燃烧性能等级等);

  (8)其他。


  2.施工图消防报建(通风空调)。


  (1)空调通风及防排烟设计说明、图例;

  (2)防烟分区示意图;

  (3)防排烟系统图;

  (4)各层防排烟平面图;

  (5)其他。


  3.施工图消防报建(给排水)。


  (1)设计说明、图例;

    (2)消防给水平面图;

  (3)消火栓图;

  (4)喷淋平面图;

  (5)自动灭火系统和灭火器平面布置图;

  (6)其他。


  4.施工图消防报建(电气)。


  (1)设计说明、图例;

  (2)应急照明平面图;

  (3)消防设备配电系统图和平面图;

  (4)其他。


  5.火灾自动报警系统施工图。


  (1)设计说明、图例;

  (2)火灾自动报警平面图;

  (3)其他。


  6.其他图纸。

  7.图纸的真实性承诺书(建设、设计、施工图审查三家单位盖章确认)。

  (如申请民用建筑装修工程消防变更,除提供民用建筑装修工程消防设计图纸清单外,需提供以下资料:变更范围、内容的对比图及说明;若有防火加强措施需说明)


本文标签:
在线客服
联系方式

热线电话

13600906870

上班时间

周一到周五

公司电话

13600906870

二维码
线